服務熱線
180-5003-0233

本發明屬於機械設計
技術領域:
,具體涉及一種CIGS柔性電池片探花网站在线观看及其使用方法。
背景技術:
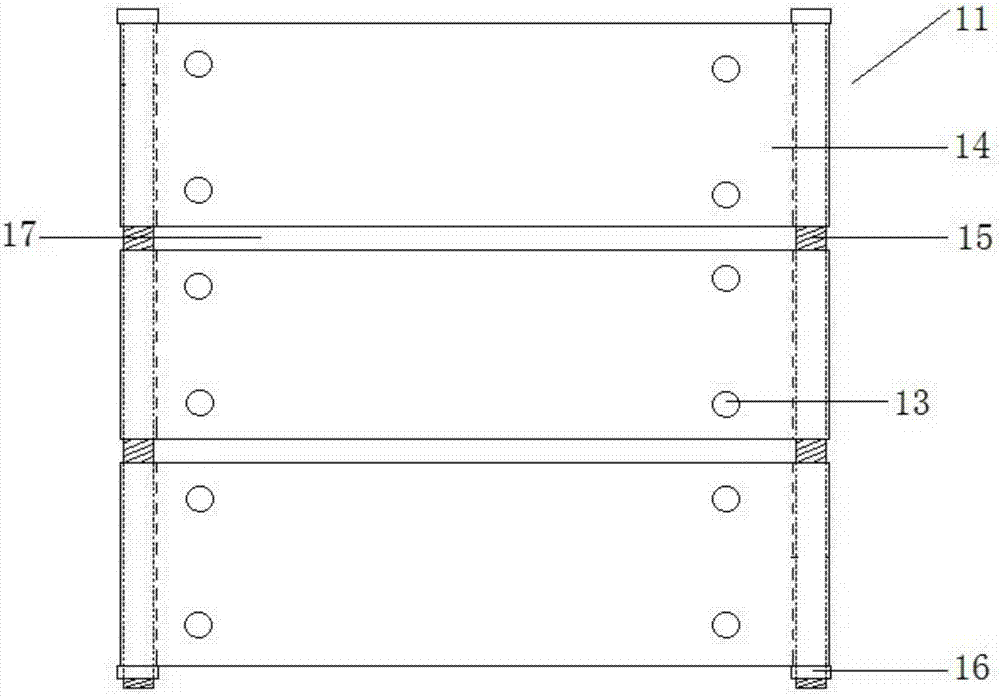
:銅銦镓硒(CIGS)薄膜太陽能電池在加工工藝上分為玻璃襯底與不鏽鋼襯底兩種,采用不鏽鋼襯底製作電池片具有重量輕、厚度薄、可彎曲、易攜帶,且光吸收能力強,發電穩定性好、轉化效率高、成本低等諸多優勢,已成為太陽能行業現在研發及使用的熱點;目前使用的片材CIGS柔性電池片是上遊電池生產商從幾百米、上千米長的大型卷材中分切、加工而成;而到中遊組件廠商在CIGS柔性電池組件係列產品、CIGS便攜式充電器和相應應用產品的生產中,需要對來料原始尺寸電池片進行再次分切,以滿足產品設計中電性能要求,目前CIGS柔性電池片分切工具卻很少,其中使用最多的工具為切紙刀。加工過程中,切紙刀存在以下缺點:分切尺寸精度較差,因為分切過程中電池片容易滑動;人員工作強度大,且有分切中無安全防護,人員容易疲勞,易受傷;分切效率低,每人8~10次/min;產線人工成本高,為保持產線線平衡,分切工序需要增加更多的人員、裁紙機,以滿足下道電池片拚接工序的生產節奏。技術實現要素:根據以上現有技術的不足,本發明所要解決的技術問題是提出一種CIGS柔性電池片探花网站在线观看及其使用方法,通過在上刀模上設置多把刀具,同時分切,單位時間內分切出多張電池片。為了解決上述技術問題,本發明采用的技術方案為:一種自動控製的CIGS柔性電池片探花网站在线观看構,包括上刀模、下刀模、機架、導柱和PLC控製器,所述下刀模設置在上刀模的正下方,所述上刀模包括多個刀具和上刀模夾具單元,每兩個上刀模夾具單元之間固定一把刀具,上刀模通過導柱連接機架,PLC控製器控製氣液增壓缸驅動上刀模向下刀模方向往複運動,所述下刀模為輸送帶麵上帶有多個間隙相同的凸台的輸送機,電池片放置在凸台上。所述探花网站在线观看上設有RFID組件,RFID組件包括多個RFID閱讀器和設置在凸台端麵上的RFID標簽,多個RFID閱讀器設置在垂直於水平麵的同一直線上,多個RFID閱讀器讀取到RFID標簽信息後,發送給PLC控製器,PLC控製器計算分析RFID標簽距離RFID閱讀器的距離。作為一種優選實施方式:所述上刀模夾具單元為側麵設有通孔的四方體結構,所述上刀模夾具單元的寬度為52.35mm、105.15mm或52.8mm。所述上刀模和導柱之間設有刀模固定板,上刀模夾具單元上設有定位孔,刀模固定板對應位置設有腰型孔,通過雙頭螺柱穿過所述定位孔和腰型孔,將上刀模固定在刀模固定板上,刀模固定板連接導柱。所述凸台上表麵與水平麵設有一個夾角,凸台上表麵的兩端存在5mm高度差。所述凸台寬度為26.4mm,凸台間間隙寬度為26.4mm。所述凸台的上表麵設有用於吸附電池片的軟磁片。所述軟磁片的上表麵設有降低軟磁片對電池片吸附能力的麵板,麵板為隔水膜材質。所述探花网站在线观看構還包括比例流量閥和比例壓力閥,比例流量閥用來調控氣液增壓缸入口的氣體流量,比例壓力閥用來調控氣流的入口壓力。所述探花网站在线观看構還包括采集比例壓力閥輸入電流的電流傳感器、比例流量閥入口壓力P入和比例壓力閥出口壓力出的壓力傳感器、流經比例流量閥的流量Q的流量傳感器和增壓缸輸出軸的位移傳感器,電流傳感器、壓力傳感器、流量傳感器和位移傳感器均連接至PLC控製器,PLC控製器通過比例壓力閥內置或外置壓力傳感器分別采集P入,P出和Q信號值,進行數據對比後,比例壓力閥輸出修正信號,通過輸出的電流或電壓信號來控製比例壓力閥開口大小及比例壓力閥調壓腔中氣體的壓力,直到輸出壓力、流量與輸入信號成比例。一種CIGS柔性電池片探花网站在线观看的使用方法,包括如下步驟:Step1:首先根據需要分切得到的電池片尺寸組裝上刀模,將組裝好的上刀模固定在機架上;Step2:調整下刀模的初始位置,使下刀模凸台端麵的RFID標簽對準閱讀閱讀器;Step3:PLC控製器通過氣液增壓缸驅動上刀模向下刀模的方向運動,上刀模上的刀具完成對電池片的分切後,驅動上刀模遠離下刀模的方向運動,完成一次分切;Step4:PLC控製器控製下刀模轉動一定距離後,多個RFID閱讀器向RFID標簽和RFID多個RFID閱讀器所在的空間平麵內發射電磁波信號,檢測RFID標簽信號,建立該平麵的二維坐標係,設定RFID閱讀器的位置是(xn,yn)待檢測RFID標簽的坐標為(x,y),RFID閱讀器接收到的RFID標簽的方向角為θn,則有:tanθn=y-ynx-xn]]>得到:y=yn+(x-xn)tanθn其中,yn、xn、x和tanθn都為已知量,通過將RFID標簽和凸台端麵距離RFID閱讀器的初始位置進行對比,確定下刀模的輸送帶麵是否跑偏;如果檢測不到RFID標簽信號,則可以判斷下刀模的運動距離偏離了初始設定距離;如果檢測到下刀模的輸送帶麵沒有跑偏,則執行步驟Step3;如果檢測到跑偏或者檢測不到信號,則停機檢測。所述步驟Step3還包括對氣液增壓缸的輸出壓力的調節,具體為:係統采集比例壓力閥輸入電流、比例流量閥入口壓力P入和比例壓力閥出口壓力出、流經比例流量閥的流量Q和增壓缸輸出軸的位移,PLC控製器根據采集的P入,P出和Q信號值,進行數據對比後,比例壓力閥輸出修正信號,通過輸出的電流或電壓信號來控製比例壓力閥開口大小及比例壓力閥調壓腔中氣體的壓力,直到輸出壓力、流量與輸入信號成比例。本發明有益效果是:本發明提供的分切裝置分切精度高,上下刀模配合可達到0.1mm的分切精度;分切效率高,分切速度可達到15n/min(n為上刀模配置的切刀數量);3.分切操作人員人身安全風險降低,配置多項安全裝置;4.操作簡單。附圖說明下麵對本說明書附圖所表達的內容及圖中的標記作簡要說明:圖1是本發明的具體實施方式的分切裝置的結構示意圖。圖2是本發明的具體實施方式的上刀模俯視圖。圖3是本發明的具體實施方式的下刀模結構示意圖。圖4是本發明的具體實施方式的軟磁片的位置示意圖。圖5是本發明具體實施方式的動力係統示意圖。圖6是本發明具體實施方式的RFID組件二維坐標係示意圖。其中,1.氣液增壓缸,2.導柱,3.刀模固定板,4.光柵,5.操作麵板,6.PLC控製器,7.機架,8.電源按鈕,9.緊急按鈕,10.啟動按鈕,11.上刀模,12.有機玻璃板,13.定位孔,14上刀模夾具單元,15螺栓,16螺母,17切刀,18凸台,19軟磁片,20空壓機,21空氣過濾器,22減壓閥,23壓力表,24油霧器,25比例流量閥,26比例壓力閥,27工作缸,28預壓缸。具體實施方式下麵對照附圖,通過對實施例的描述,本發明的具體實施方式如所涉及的各構件的形狀、構造、各部分之間的相互位置及連接關係、各部分的作用及工作原理、製造工藝及操作使用方法等,作進一步詳細的說明,以幫助本領域技術人員對本發明的發明構思、技術方案有更完整、準確和深入的理解。本發明的主要思路是:分切裝置包括上刀模11和下刀模,上刀模11采用氣液增壓缸1來驅動,上刀模11上固定有刀具,下刀模上放置有待切割的電池片,增壓缸驅動上刀模11向下刀模的方向運動,實現電池片的分切。采用增壓缸來產生大壓力,使刀具17能夠快速將柔性電池片切斷,不影響電池片的電性能;分切裝置三麵配置有機玻璃,操作麵配置安全光柵4,並設置為雙按鈕操作,來保證操作人員的人身安全;上下刀模定製,在上刀模11上配置適量刀具17,實現一次分切,得到多塊電池片。如圖1所示,為本發明的分切裝置的結構示意圖,分切裝置包括動力係統、定位係統和電氣控製係統,定位係統是刀具、電池片的定位夾持機構,動力係統是上刀模11的驅動機構,電氣控製係統控製動力係統、以及其他電器。定位係統包括機架7、導柱2、刀模固定板3、上刀模11和下刀模,上刀模11固定在刀模固定板3上,刀模固定板3通過導柱2連接機架7的頂端,可沿著導柱2軸向上下移動,氣液增壓缸1為上刀模11提供驅動力。下刀模設置於上刀模11的正下方,是柔性電池片的支撐機構。上刀模11包括刀具、和多個上刀模夾具單元14,多個上刀模夾具單元14通過螺栓15和螺母16組裝在一起,兩個上刀模夾具單元14之間空出一個刀槽的位置,用於裝上刀具。依據分切午夜探花在线视频尺寸的不同,在每兩個夾具單元間分別安裝一把刀具,以實現提高生產效率的目的。如圖2所示,為上刀模11的俯視圖,每兩個上刀模夾具單元14卡緊一把刀具17,上刀模夾具單元14和刀具17的兩端均設有可通螺栓15穿過的通孔,將上刀模夾具單元14和刀具17組裝好後,通過螺栓15和兩端的螺母16固定。具體的,在實際應用中,電池片需要分切成的尺寸一般為52.8mm和105.6mm,刀具的厚度為0.45mm,因此,本發明的上刀模夾具單元14寬度方向設計成52.35mm、105.15mm和52.8mm,需要分切成52.8mm寬度的電池片時,用多個52.35mm寬度的上刀模夾具單元14組裝上刀模11夾具,每兩個上刀模夾具單元14之間固定一把刀具17。需要分切成105.6mm寬度的電池片時,用多個105.15mm寬度的上刀模夾具單元14組裝上刀模11夾具,每兩個上刀模夾具單元14之間固定一把刀具17;或者將105.15mm寬度的上刀模夾具單元14替換成52.35mm和52.8mm寬度的上刀模夾具單元14組裝成105.15mm寬度的上刀模夾具單元14。如圖2所示,為組裝好的上刀模11,上刀模11通過雙頭螺柱、螺母16和墊片固定在刀模固定板3上,每個上刀模夾具單元14上設有定位孔13,刀模固定板3上對應設置有腰型孔,雙頭螺柱穿過所述上刀模夾具單元14上的定位孔13和刀模固定板3上的腰型孔,通過墊片和螺母16使上刀模11固定在刀模固定板3上。如圖3所示,為下刀模的結構圖,下刀模是以輸送帶為核心的電池片承載裝置,包括電機、輸送帶和輸送帶表麵的凸台18,輸送帶表麵的凸台18為間隔設置,凸台18上設有可以吸附電池片的軟磁片19。整個凸台18為柔性午夜探花在线视频,便於凸台18轉過傳送帶兩端麵的時候,凸台18拉伸彎曲。在輸送帶的中間位置加設多個支撐輥,以保持輸送帶麵的張力。軟磁片19由於不具有拉伸性能,因此將軟磁片19設計為多個條狀單元間隔布置在柔性凸台18的外表麵。選用磁性相對較弱的軟磁片19作為電池片的定位裝置,一方麵是因為銅銦镓硒薄膜電池片為不鏽鋼襯底,使用軟磁片19可以吸附住銅銦镓硒薄膜電池片。另一方麵,銅銦镓硒薄膜電池片在拚接完成後需要從工裝表麵取下,這就要求工裝對銅銦镓硒薄膜電池片的吸附力不能太強,否則會加大取下銅銦镓硒薄膜電池片難度係數。在軟磁片19的上表麵內根據軟磁對銅銦镓硒電池片吸附力的大小來決定是否放置麵板,麵板可以采用厚度相對較薄的午夜探花在线视频,例如隔水膜等,通過在軟磁表麵添加表麵光滑的麵板來改變軟磁片19對銅銦镓硒電池吸附力度。如圖4所示,為凸台18上軟磁片19的位置示意圖。電池片的常見分切尺寸為52.8mm和105.6mm,本發明優選凸台18和一個凸台18間間隙的寬度為52.8mm,凸台18寬度為26.4mm,凸台18間間隙寬度為26.4mm,傳送帶每轉動n*52.8mm的距離,上刀模11對電池片進行一次分切,n為刀具的數量。為便於上刀模11的刀具對電池片的快速分切,將刀具17刀鋒與電池片平麵設置一個角度,可以通過使上刀模11與水平麵設置一個夾角,或者通過下刀模與水平麵設置一個夾角,如圖3所示,凸台18與平麵設置一個傾斜角度,使電池片的兩端形成5mm的高度差。在機架7上除了電池片進出側,其他三麵都配置有有機玻璃板12,防止人員在裝置工作過程中將手伸至上刀模11下麵;另外,在沒有裝配有機玻璃板12的一麵設置有安全光柵4,光柵4保護接入中間繼電器,通過中間繼電器觸點在分別接入PLC控製器6和急停電路,光柵4開關動作報警後,增壓缸停止動作,需從麵板從新啟動。下刀模的傳送帶一部分處於機架7的有機玻璃防護罩內部,一部分處於機架7有機玻璃防護罩外部,已經分切好的電池片經傳送帶輸送到玻璃防護罩的外部,通過人工或者機械手方式下料。動力係統是以增壓缸為核心的動力調節裝置,包括空壓機20、空氣過濾器21、減壓閥22、壓力表23、油霧器24、比例流量閥25、比例壓力閥26、氣液增壓缸1、預壓缸28、工作缸27、傳感器等部件構成,如圖5所示,比例流量閥25用來調控氣液增壓缸1入口的氣體流量,比例壓力閥26用來調控氣流的入口壓力;傳感器與比例閥配合使用,可檢測比例閥輸出口的氣流壓力與驅動電流是否成比例,整個行程屬於閉環控製,能夠實現增壓係統氣流的反饋控製。動力係統具體的控製原理為壓縮氣體經比例流量閥25,其入口壓力P入,流量為Q,經比例壓力閥26出口壓力為P出,進入氣液增壓缸1。PLC控製器6通過比例壓力閥26內置或外置傳感器分別采集P入,P出和Q信號值,進行數據對比後,比例壓力閥26輸出修正信號,通過輸出的電流或電壓信號來控製比例壓力閥26開口大小及比例壓力閥26調壓腔中氣體的壓力,直到輸出壓力、流量與輸入信號成比例。此外,在驅動係統氣液增壓缸1安裝位移傳感器,用來檢測工作過程中氣液增壓缸1的位移、輸出力等運動學參數,並將信號輸出至控製係統。PLC控製器6采用PCI總線方式,應用集成的數據采集卡PCI-1713,采集比例壓力閥26輸入電流、位移傳感器、流量傳感器和壓力傳感器的數據,比例壓力閥26輸入的電流經電壓轉換裝置和調理電路後,直接接到數據采集卡的接線板上。比例壓力閥26能夠實現輸入信號與輸出壓力成比例變化,當輸入信號增大時,給氣電磁閥開啟,排氣電磁閥仍保持閉合狀態。壓縮空氣通過給氣電磁閥作用在先導閥的先導腔,同時,先導腔的壓力上升,作用在膜片上麵,而與膜片連動的給氣閥被打開,壓縮氣體通過輸出口流向上刀模11,為上刀模11提供輸出壓力。壓縮氣體通過壓力傳感器將壓力信號轉換成電信號,反饋到控製回路中,與控製輸入信號進行比較,若產生偏差信號,則需要修正輸出量。如此通過不斷的反饋修正動作,最終實現輸出氣體的壓力和控製輸入信號成比例。比例流量閥25根據控製係統輸入電信號的大小來改變閥口的開口大小,從而控製流量的大小。電氣控製係統包括PLC控製器6、RFID組件,在啟動按鈕10和電源按鈕8都接通後,係統開始工作,從操作麵板5輸入輸送帶電機的運行參數和增壓缸的運行參數,由輸送電機的轉動步距來確定增壓缸的工作頻率,每切割完成一次,輸送帶向前轉動一定的距離後,增壓缸帶動上刀模11再次下刀。RFID組件包括RFID標簽組和RFID閱讀器組,將RFID標簽設置在凸台18的端部,每個凸台18的端部設置一個RFID標簽,RFID閱讀器設置在機架7上,RFID閱讀器組包括至少兩個RFID閱讀器,多個RFID閱讀器設置在垂直於水平麵的同一豎直直線上。通過RFID閱讀器向垂直於凸台18端部平麵的方向發射無線電磁波,RFID標簽檢測到該信號時,向RFID閱讀器返回該信號。在實際的使用過程中,傳送帶電機每轉動一個角度後,PLC控製器6向RFID閱讀器發出檢測指令,RFID向垂直於凸台18端麵發射定向電磁波信號,如果接收到RFID標簽返回的數據信息,則PLC控製器6可以從RFID閱讀器確認電機的轉動角度為初始設定距離。另外,可以通過RFID組件檢測凸台18邊緣距離RFID閱讀器的距離,檢測是否有輸送帶麵跑偏現象。本發明的RFID閱讀器組采用定向天線,在RFID閱讀器組和RFID標簽組垂直於凸台18端麵的平麵內發射電磁波信號,RFID閱讀器組同步發射無線信號,借助天線陣列檢測電磁波的入射角方向,利用兩個RFID閱讀器檢測到的同一目標,在電磁波信號平麵內就可以確定待檢測RFID標簽的位置。多個RFID閱讀器組可以用於檢驗這一結果的準確性。如圖6所示,建立該平麵的二維坐標係,設定RFID閱讀器組的位置分別是(xn,yn)、(xm,ym),待檢測RFID標簽的坐標為(x,y),閱讀設備組接收到的RFID標簽的方向角為θn,θm,則有:tanθn=y-ynx-xntanθm=y-ymx-xm]]>得到:x=-xntanθn+xmtanθm+yn-ymtanθm-tanθn]]>本發明中,如果將RFID閱讀器組設置在y軸上,其中一個設在原點,也即RFID閱讀器組的位置分別是(0,y1)和(0,y2),tanθ1和tanθ2為已知量,此時,RFID標簽的位置即為:x=y1-y2tanθ2-tanθ1]]>通過將標簽的位置與沒有跑偏時的正常距離進行比較,即可以得到輸送帶的位置是否偏離基準位置。本發明的裝置實施過程如下:檢查機台狀態、打開電源-->鬆開緊急按鈕9-->選取適合的上下刀模-->將電池片放置於下刀模上進行定位-->雙手分別按鈕操作按鈕-->氣液增壓缸1推動上刀模11下降進行分切-->上刀模11退回-->傳送帶運動-->RFID組件檢測電池片及傳送帶位置-->取出分切好的電池片,並進行下一個循環。上麵結合附圖對本發明進行了示例性描述,顯然本發明具體實現並不受上述方式的限製,隻要采用了本發明的方法構思和技術方案進行的各種非實質性的改進,或未經改進將本發明的構思和技術方案直接應用於其它場合的,均在本發明的保護範圍之內。本發明的保護範圍應該以權利要求書所限定的保護範圍為準。當前第1頁1 2 3
技術特征:
1.一種CIGS柔性電池片探花网站在线观看,其特征在於,包括上刀模(13)、下刀模、機架(7)、導柱(2)和PLC控製器,所述下刀模設置在上刀模(13)的正下方,所述上刀模(13)包括多個刀具(17)和上刀模夾具單元(14),每兩個上刀模夾具單元(14)之間固定一把刀具(17),上刀模(13)通過導柱(2)連接機架(7),PLC控製器控製氣液增壓缸(1)驅動上刀模(13)向下刀模方向往複運動,所述下刀模為輸送帶麵上帶有多個間隙相同的凸台(18)的輸送機,電池片放置在凸台(18)上,所述探花网站在线观看上設有RFID組件,RFID組件包括多個RFID閱讀器和設置在凸台端麵上的RFID標簽,多個RFID閱讀器設置在垂直於水平麵的同一直線上,多個RFID閱讀器讀取到RFID標簽信息後,發送給PLC控製器,PLC控製器計算分析RFID標簽距離RFID閱讀器的距離。
2.根據權利要求1所述的柔性電池片探花网站在线观看,其特征在於,所述上刀模夾具單元(14)為側麵設有通孔的四方體結構,所述上刀模夾具單元(14)的寬度為52.35mm、105.15mm或52.8mm。
3.根據權利要求1所述的柔性電池片探花网站在线观看,其特征在於,所述上刀模(13)和導柱(2)之間設有刀模固定板(3),上刀模夾具單元(14)上設有定位孔,刀模固定板(3)對應位置設有腰型孔,通過雙頭螺柱穿過所述定位孔和腰型孔,將上刀模(13)固定在刀模固定板(3)上,刀模固定板(3)連接導柱(2)。
4.根據權利要求1所述的柔性電池片探花网站在线观看,其特征在於,所述凸台(18)上表麵與水平麵設有一個夾角,凸台(18)上表麵的兩端存在5mm高度差。
5.根據權利要求4所述的柔性電池片探花网站在线观看,其特征在於,所述凸台(18)寬度為26.4mm,凸台(18)間間隙寬度為26.4mm。
6.根據權利要求1所述的柔性電池片探花网站在线观看,其特征在於,所述凸台(18)的上表麵設有用於吸附電池片的軟磁片(19)。
7.根據權利要求6所述的柔性電池片探花网站在线观看,其特征在於,所述軟磁片(19)的上表麵設有降低軟磁片(19)對電池片吸附能力的麵板,麵板為隔水膜材質。
8.根據權利要求1-7任意一項所述的CIGS柔性電池片探花网站在线观看的使用方法,其特征在於,包括如下步驟:
Step1:首先根據需要分切得到的電池片尺寸組裝上刀模,將組裝好的上刀模固定在機架上;
Step2:調整下刀模的初始位置,使下刀模凸台端麵的RFID標簽對準閱讀閱讀器;
Step3:PLC控製器通過氣液增壓缸驅動上刀模向下刀模的方向運動,上刀模上的刀具完成對電池片的分切後,驅動上刀模遠離下刀模的方向運動,完成一次分切;
Step4:PLC控製器控製下刀模轉動一定距離後,多個RFID閱讀器向RFID標簽和RFID多個RFID閱讀器所在的空間平麵內發射電磁波信號,檢測RFID標簽信號,建立該平麵的二維坐標係,設定RFID閱讀器的位置是(xn,yn)待檢測RFID標簽的坐標為(x,y),RFID閱讀器接收到的RFID標簽的方向角為θn,則有:
得到:
y=yn+(x-xn)tanθn
其中,yn、xn、x和tanθn都為已知量,通過將RFID標簽和凸台端麵距離RFID閱讀器的初始位置進行對比,確定下刀模的輸送帶麵是否跑偏;如果檢測不到RFID標簽信號,則可以判斷下刀模的運動距離偏離了初始設定距離;如果檢測到下刀模的輸送帶麵沒有跑偏,則執行步驟Step3;如果檢測到跑偏或者檢測不到信號,則停機檢測。
9.根據權利要求8所述的CIGS柔性電池片探花网站在线观看的使用方法,其特征在於:所述步驟Step3還包括對氣液增壓缸的輸出壓力的調節,具體為:係統采集比例壓力閥(26)輸入電流、比例流量閥(25)入口壓力P入和比例壓力閥(26)出口壓力出、流經比例流量閥(25)的流量Q和增壓缸輸出軸的位移,PLC控製器根據采集的P入,P出和Q信號值,進行數據對比後,比例壓力閥(26)輸出修正信號,通過輸出的電流或電壓信號來控製比例壓力閥(26)開口大小及比例壓力閥(26)調壓腔中氣體的壓力,直到輸出壓力、流量與輸入信號成比例。
技術總結
本發明公開了一種CIGS柔性電池片探花网站在线观看及其使用方法,包括上刀模、下刀模、機架和導柱,所述下刀模設置在上刀模的正下方,電池片放置在下刀模上,所述上刀模包括多個刀具和上刀模夾具單元,每兩個上刀模夾具單元之間固定一把刀具,上刀模通過導柱連接機架,上刀模在增壓缸的驅動下向下刀模方向往複運動。本發明提供的分切裝置分切精度高,上下刀模配合可達到0.1mm的分切精度,分切效率高,一次下刀可以分切多張電池片。
技術研發人員:夏穎;趙亮;陳小雨
受保護的技術使用者:安徽鼎暉新能源科技有限公司
文檔號碼:201610859110
技術研發日:2016.09.28
技術公布日:2017.01.11